< Back to Past Projects
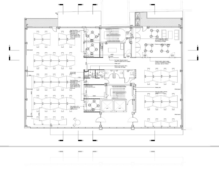
Payment Processing Company
Belfast
Projects
Videos
Publications & Awards
Past Projects
Profile
Contact